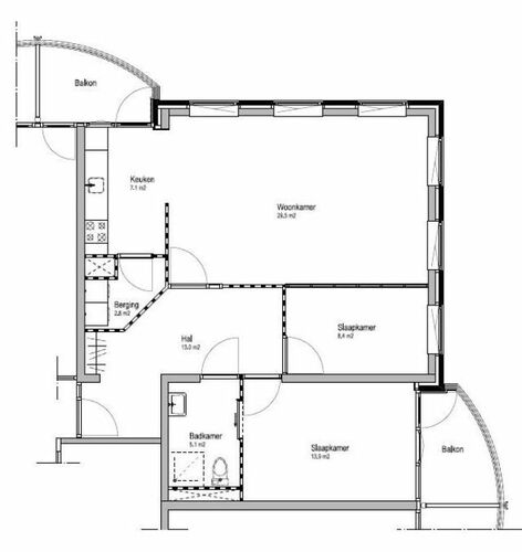
In Stadskanaal aan de Wiekedreef met de huisnummers 80 t/m 198 (e) ligt het opvallende appartementencomplex Maarshorst. Maarshorst ligt op de rand van het centrum. Het appartementencomplex heeft 60 ruime appartementen. Elk appartement heeft naast twee slaapkamers ook twee balkons. Helemaal bovenin het complex is de recreatiezaal met een prachtig uitzicht over Stadskanaal. In de recreatiezaal worden door het jaar heen diverse activiteiten georganiseerd door de bewoners. De recreatiezaal is ook te reserveren voor verjaardagen of andere gelegenheden.
| Kenmerken | Woongebouw |
|
|
We zitten hier heel goed.
