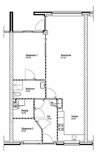
De Hofstaete in Beilen ligt middenin het centrum van Beilen, aan de Hofstraat. Het is een energiezuinig, modern complex met een grote ontmoetingsruimte op de begane grond en een ruimte boven voor de bewoners om activiteiten te doen. Belangrijk, want er wordt altijd van alles georganiseerd in de Hofstaete! Het royaal opgezette complex doet gezellig aan door de aankleding en de gemoedelijke sfeer. Daarnaast zijn alle voorzieningen zoals supermarkten en andere winkels op loopafstand bereikbaar. Ideaal!
| Kenmerken | Woongebouw |
|
|
Servicekosten
Bij de huur van een appartement in De Hofstaete worden ook servicekosten in rekening gebracht voor:
- Gas/elektra centrale ruimte
- Schoonmaak centrale ruimte
- Onderhoud tuinen
- Sparen inventaris
- Servicefonds
- Huismeester
Hier hoef je je niet te vervelen.
