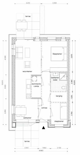
Het nieuwbouwcomplex Elzenhof is in 2021 gebouwd en ligt aan de Elzenstraat in Veenoord. Dit seniorencomplex heeft 21 woningen, die zijn gebouwd aan een open en groen hofje met als doel ontmoetingen tussen bewoners te stimuleren.
| Kenmerken | Woongebouw |
|
|
